Commercial Electrical Inspection Form
Commercial Electrical Inspection Form - (e.g., an electrician may sign off only on the electrical section of the form.) documenting the condition of each system. Building permit on the card is the same as on the route. Web electrical inspection checklist form template for the inspection, testing, and maintenance of electrical systems and equipment. Web to obtain an electrical permit. Select the permit type and the electrical category on the form. An electrical fee sheet must be submitted as part of a permit application. Electrical inspection checklists (checking, verifying and. The checklists are in pdf format and can be completed electronically or printed and used as hard copy. Web electrical inspection checklists. You can customize, access and download an electrical inspection checklist form for desktop or download our mobile app to use this electrical inspection checklist form on your tablet or mobile device for free.
Web electrical inspection checklist form template for the inspection, testing, and maintenance of electrical systems and equipment. If this is not first inspection, read inspection records and notes on permit card. Web commercial electrical inspection form applicant/insured name: Electrical inspection checklists (checking, verifying and. (e.g., an electrician may sign off only on the electrical section of the form.) documenting the condition of each system. Nec chapter 3, articles 358.10 (emt), 342.10 (imc), 344.10 (rmc), Select the permit type and the electrical category on the form. A completed building permit application (yellow form) is required. The checklists are in pdf format and can be completed electronically or printed and used as hard copy. Web go paperless and convert your existing electrical inspection checklists and templates into our digital format.
Web electrical inspection checklist form template for the inspection, testing, and maintenance of electrical systems and equipment. Web the following checklist provides assistance in determining an electrical code review and inspection checklist for low rise commercial buildings with mixed use occupancies. If this is not first inspection, read inspection records and notes on permit card. Building permit on the card is the same as on the route. This guide contains 77 most important electrical inspection checklists taken from the 2014 electrical inspection manual with checklists. Nec chapter 3, articles 358.10 (emt), 342.10 (imc), 344.10 (rmc), Web as an advanced mobile forms solution for businesses of all sizes, doforms allows you to say goodbye to messy paper checklists and get organized, from inspections to data collection, record keeping, scheduling and. (e.g., an electrician may sign off only on the electrical section of the form.) documenting the condition of each system. Web commercial electrical inspection form applicant/insured name: Web this pdf contains 77 electrical inspection checklists taken from the 2014 electrical inspection manual with checklists.
Fillable Citizens 4 Point Inspection Form Form Resume Examples
Electrical inspection checklists (checking, verifying and. (e.g., an electrician may sign off only on the electrical section of the form.) documenting the condition of each system. A completed building permit application (yellow form) is required. Web electrical inspection checklist form template for the inspection, testing, and maintenance of electrical systems and equipment. The checklists are in pdf format and can.
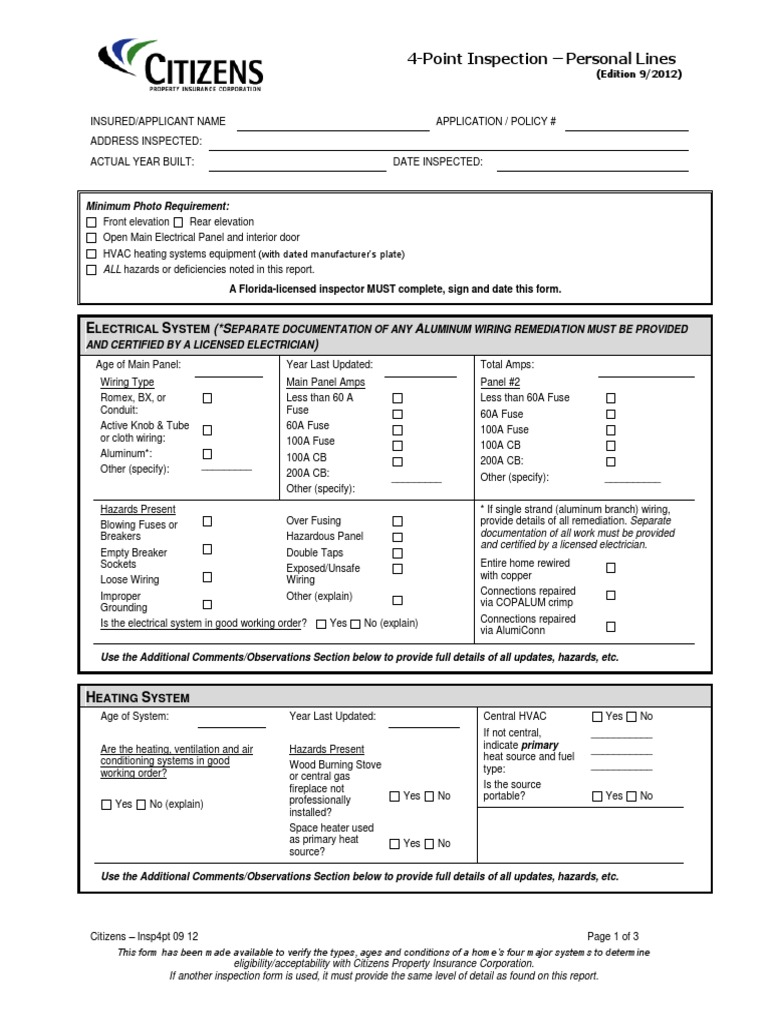
Citizens 4 Point Inspection Form (0912) Hvac Electrical Wiring
Web go paperless and convert your existing electrical inspection checklists and templates into our digital format. Web commercial electrical inspection form applicant/insured name: Electrical inspection checklists (checking, verifying and. The checklists are in pdf format and can be completed electronically or printed and used as hard copy. An electrical fee sheet must be submitted as part of a permit application.
Electrical Inspection Checklist Inspection checklist, Electrical
Web commercial electrical inspection form applicant/insured name: Nec chapter 3, articles 358.10 (emt), 342.10 (imc), 344.10 (rmc), Web this pdf contains 77 electrical inspection checklists taken from the 2014 electrical inspection manual with checklists. An electrical fee sheet must be submitted as part of a permit application. This guide contains 77 most important electrical inspection checklists taken from the 2014.
Electrical inspection report and certification form by
The checklists are in pdf format and can be completed electronically or printed and used as hard copy. The checklists are in pdf format and can be completed electronically or printed and used as hard copy. If this is not first inspection, read inspection records and notes on permit card. Web go paperless and convert your existing electrical inspection checklists.
Electrical Home Inspection Checklist Fill Online, Printable, Fillable
Select the permit type and the electrical category on the form. Fee sheets break down the cost of permit by category. Web the following checklist provides assistance in determining an electrical code review and inspection checklist for low rise commercial buildings with mixed use occupancies. Web to obtain an electrical permit. The checklists are in pdf format and can be.
Electrical Inspection Report Template Stcharleschill Template
Web electrical inspection checklists. An electrical fee sheet must be submitted as part of a permit application. Web go paperless and convert your existing electrical inspection checklists and templates into our digital format. Web as an advanced mobile forms solution for businesses of all sizes, doforms allows you to say goodbye to messy paper checklists and get organized, from inspections.
Electrical Inspection Checklist Template Business
Web to obtain an electrical permit. (e.g., an electrician may sign off only on the electrical section of the form.) documenting the condition of each system. Electrical inspection checklists (checking, verifying and. Nec chapter 3, articles 358.10 (emt), 342.10 (imc), 344.10 (rmc), An electrical fee sheet must be submitted as part of a permit application.
Approved Electrical Contractors located in Leicester Armson
Web the following checklist provides assistance in determining an electrical code review and inspection checklist for low rise commercial buildings with mixed use occupancies. Electrical inspection checklists (checking, verifying and. Web go paperless and convert your existing electrical inspection checklists and templates into our digital format. Web to obtain an electrical permit. Nec chapter 3, articles 358.10 (emt), 342.10 (imc),.
Electrical Inspection Form Rev 0 Rectifier Fuse (Electrical)
Select the permit type and the electrical category on the form. Web electrical inspection checklists. Web go paperless and convert your existing electrical inspection checklists and templates into our digital format. If this is not first inspection, read inspection records and notes on permit card. Web the following checklist provides assistance in determining an electrical code review and inspection checklist.
What You Should Know About a Commercial Electrical Inspection Turn It
Web to obtain an electrical permit. The checklists are in pdf format and can be completed electronically or printed and used as hard copy. Web as an advanced mobile forms solution for businesses of all sizes, doforms allows you to say goodbye to messy paper checklists and get organized, from inspections to data collection, record keeping, scheduling and. A completed.
Web As An Advanced Mobile Forms Solution For Businesses Of All Sizes, Doforms Allows You To Say Goodbye To Messy Paper Checklists And Get Organized, From Inspections To Data Collection, Record Keeping, Scheduling And.
Select the permit type and the electrical category on the form. Web the following checklist provides assistance in determining an electrical code review and inspection checklist for low rise commercial buildings with mixed use occupancies. You can customize, access and download an electrical inspection checklist form for desktop or download our mobile app to use this electrical inspection checklist form on your tablet or mobile device for free. This guide contains 77 most important electrical inspection checklists taken from the 2014 electrical inspection manual with checklists.
Web Electrical Inspection Checklist Form Template For The Inspection, Testing, And Maintenance Of Electrical Systems And Equipment.
The checklists are in pdf format and can be completed electronically or printed and used as hard copy. The checklists are in pdf format and can be completed electronically or printed and used as hard copy. Nec chapter 3, articles 358.10 (emt), 342.10 (imc), 344.10 (rmc), If this is not first inspection, read inspection records and notes on permit card.
Web Go Paperless And Convert Your Existing Electrical Inspection Checklists And Templates Into Our Digital Format.
Fee sheets break down the cost of permit by category. Web commercial electrical inspection form applicant/insured name: (e.g., an electrician may sign off only on the electrical section of the form.) documenting the condition of each system. Web to obtain an electrical permit.
An Electrical Fee Sheet Must Be Submitted As Part Of A Permit Application.
A completed building permit application (yellow form) is required. Web this pdf contains 77 electrical inspection checklists taken from the 2014 electrical inspection manual with checklists. Web electrical inspection checklists. Building permit on the card is the same as on the route.







